top of page
GREEN LIVING
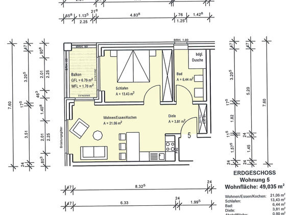
Gesamtwohnfläche: 49,035 m²
Wohnen/Essen/Kochen: 21,06 m²
Schlafen: 13,43 m²
Bad: 6,44 m²
Diele: 3,081 m²
Abstellfläche: 0,90 m²
Balkon: 3,40m² (50% von 6,79m²)
Auf ca. 49 m² bietet Ihnen diese Wohnung alles was Sie brauchen und noch viel mehr. Der ideal geschnittene Eingangsbereich bietet Ihnen den nötigen Stauraum und führt Sie direkt in einen komfortablem Wohn-Essbereich. Sowohl vom Wohn- als auch vom Schlafbereich haben Sie direkten Zugang auf Ihre Terrasse und Ihren eigenen kleinen Garten.
Etagen & Außenbereich
-
2 x im Erdgeschoss mit Terrasse und kleinem Garten

bottom of page


