BIG LIVING
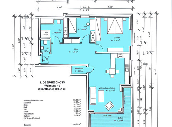
Gesamtwohnfläche: ca.100,00 m²
Wohnen/Essen/Kochen: 33,53 m²
Schlafen: 18,96 m²
Kinder-/Gäste-/Arbeitszimmer: 10,08 m²
Bad: 10,07 m²
WC: 2,27 m²
Diele: 15,35 m²
Abstellraum: 2,20 m²
Balkon/Terrasse: 8,34 m² (50% von 16,68 m²)
Diese familienfreundliche 3-Zimmerwohnung bietet Ihnen ein perfektes Zuhause mit viel Raum für Persönlichkeit. Empfangen werden Sie von einem großen Dielenbereich, welcher bereits genug Platz für die persönliche Gestaltung bietet. Umrahmt wird der großzügige, offene Wohn- Essbereich von einer wunderschönen Eckterrasse, welche Ihnen im Erdgeschoss Zugang in Ihren eigenen kleinen Garten bietet. Die schöne Wohnung überzeugt mit einer optimalen Raumaufteilung und besonders viel Charme. Nicht umsonst beheimaten die Gangolfusgärten gleich sechs dieser schönen, modern ausgestatteten Wohnungen.
Etagen & Außenbereich
-
2 x im EG mit Terrasse und Garten
-
2 x im 1. OG mit Loggia
-
2 x im 2. OG mit Loggia









